North Coast Commercial Real Estate is pleased to present to market 62 Magellan Street, Lismore. The building consists of 4 retail shops and occupies a prominent corner position in one of the region’s most recognisable retail precincts. The property benefits from steady pedestrian activity and close proximity to established retailers, dining options, and essential services. Lismore continues to strengthen as a regional centre, supported by ongoing revitalisation and strong community investment.
Key Features
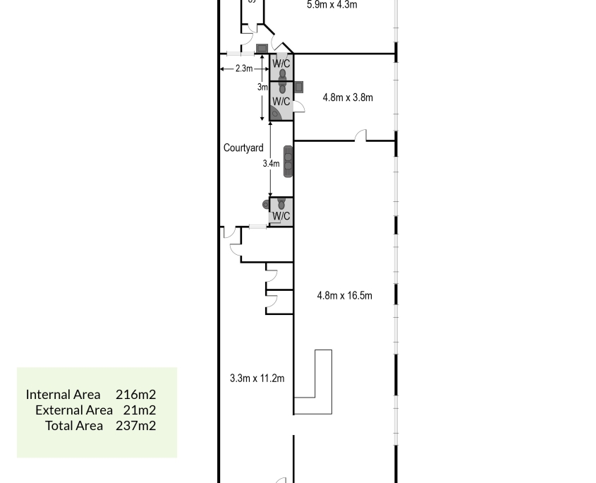
• Land Area: 266m²
• Building Area: 237m²
• Currently fully leased
• Zoning: E2 Commercial Centre
• High-profile corner position with strong exposure
• Flexible layout suitable for a wide range of retail or commercial uses
Contact
Chris Harley 0412 758 830
Miro Bradford 0401 373 033
*Approximately
Property Features
- Retail
- Land is 266 m²
- Floor Area is 237 m²
Commercial Features
Zone
E2: Commercial Centre


































